MEP Contracting
Mechanical-ELECTRICAL-PLUMPING
Contact us Via email: info@true-waves.com
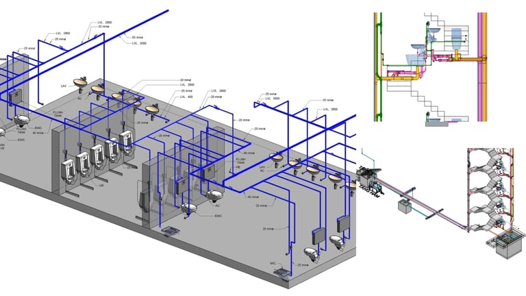
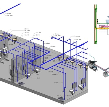
Our Expertise
At True Waves Co Ltd, our experienced team of MEP professionals delivers high-quality, reliable installation services with a strong focus on precision and efficiency.
We specialize in:
• HVAC duct and piping installation
• Fire fighting system installation
• Electrical system installation
• Aluminum cladding for HVAC ducts, pipes, and water tanks
• Design, shop drawings, and technical support
Get in Touch
Contact us today to discuss your project requirements. Our team is ready to provide expert guidance and tailored solutions to support your next steps with confidence.


I
Quick Links
Contact Us:
I
📍 Abi Bin Kaab Street-Al Sinayya Dist
Riyadh -12831, Saudi Arabia
📞 +966 533933452
© 2026 True Waves Company Ltd All rights reserved.
